Fastigheten Broktorp

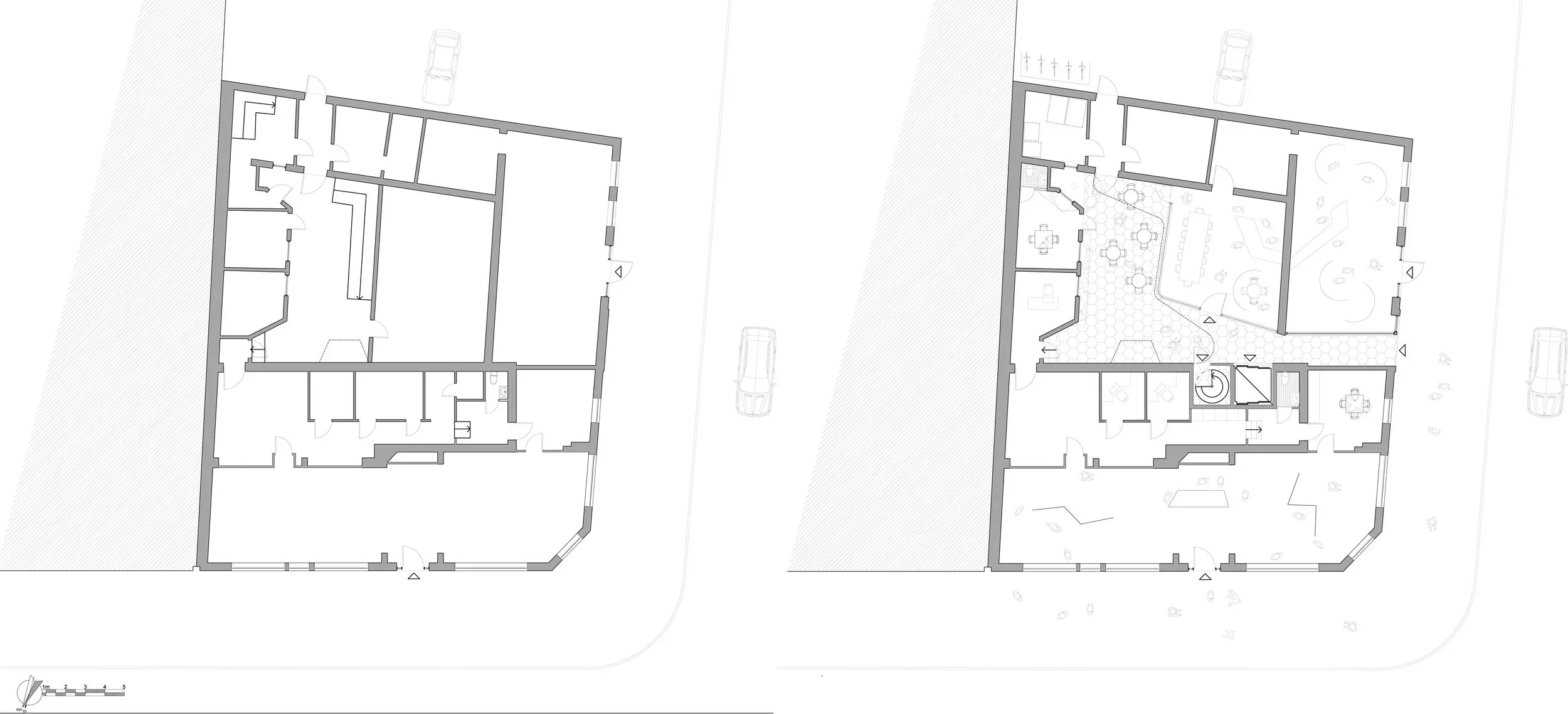
This family owned commercial property in the centre of Halmstad dates back to the early 1900's. The project involved the careful renovation of existing facade and the repurposing of the internal courtyard together with the addition of extra floor space. The project is guided by respect for the history of the building and is comprised of both renovations to existing floor plans and the addition of new floor plan layouts. By reopening the original carriage passage way the previously closed courtyard is once again linked back to the street and the idea from the clients was to create a shared space - "coffice" - for the many one-person-companies and startups in the area. The existing qualities, peculiarities and characters of the building dating back to the 1920's are retained towards the street whiles the internal courtyard has its original brick facade reinstated. The courtyard is complimented by a decidedly new corten addition that hugs the belly of the building like a soft ribbon, which solves the issue of linking the isolated wings of the building with a shared circulation area.

Location: Corner Brogatan / Hantverkargatan, Halmstad


Client: Fastigheten Broktorp 4 AB
http://www.broktorp4.se


Photography: Andreas Hanning